HQ: Chattanooga, TN
Technicians Across the U.S.
+1 423 296 9000
Request a call back
Office Hours
M-F: 9:00-6:00 EST

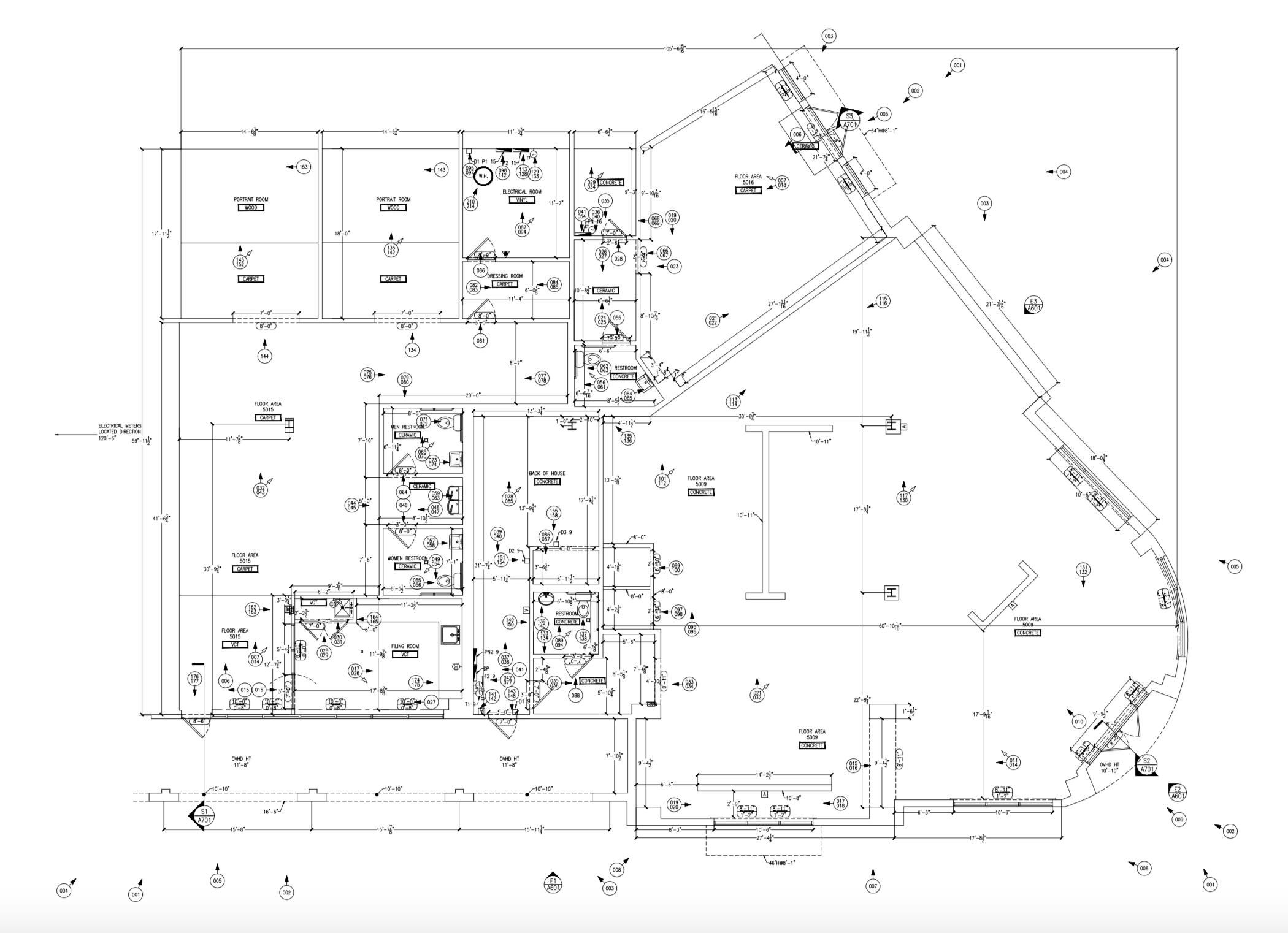
Retail Store Survey Package

The setting for this retail location is 8000 SF ground level of a mixed-use center. Curved and angled walls on the interior would be a challenge to properly document without the technologies Coast2Coast and our talented field employees utilize for such occasions.

Scope Snapshot
  • Floor Plans that included building shell and structural elements
  • Reflected Ceiling Plan including lighting and fire protection equipment
  • Electrical, plumbing and fire protection systems
  • Roof Plan
  • Exterior Elevations of all sides of the building features decorative elements to be retained
Technical data
  • Survey Method
    Laser Measure to CAD while on site
  • Deliverables
    AutoCAD Drawings, MEP Checklist, Photo Documentation
  • Equipment
    Laser Disto, Total Station

Error: Contact form not found.