HQ: Chattanooga, TN
Technicians Across the U.S.
+1 423 296 9000
Request a call back
Office Hours
M-F: 9:00-6:00 EST

Multi-site Travel Center Program

- Comprehensive Multi-site Survey Program
- Interior, Exterior, Above Ceiling Documentation
- MEP documentation, AutoCAD Drawings, and 3D Revit Model

Scope Overview
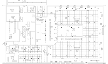
  • FLOOR PLANS
    • Walls, Doors, Windows
    • Stairs, ramps, and changes in floor level. Floor finishes and flooring transitions
    • Food prep and service equipment
    • Plumbing fixtures and floor drains
    • Electrical panels, disconnects, transformers, time switches, and meters
  • REFLECTED CEILING PLAN
    • Ceilings including grid, soffits, transitions, and exposed deck
    • Lighting, fire protection equipment, and devices
    • HVAC, including supplies, returns, equalizers, and equipment
  • SYSTEMS ABOVE CEILING
    • Deck transitions, beams, joists, and exposed columns
    • Sprinkler main and feeder lines
    • HVAC equipment, rigid ductwork, and RTU roof penetrations
    • Point of entry and size for all visible utilities including water and gas
  • MEP CHECKLIST
  • ROOF PLAN
    • Parapet wall, rooftop units, drains, exhaust fans, and vents
  • EXTERIOR ELEVATIONS
    • Doors and Windows
    • Canopies, awnings, and overhangs
    • Electrical equipment, Fire connections, Lighting, Signage
  • SITE PLAN
    • Outline of the main store and additional buildings in close proximity
    • Parking spaces adjacent to building with ADA spaces noted
    • Sidewalks, designated walkways, ramps, and bollards
    • Transformers and other mechanical, electrical, plumbing and fire protection equipment

Technical data
  • Equipment:
    Disto Laser Meters, Total Station
  • Deliverables:
    Revit Model, AutoCAD Drawings, MEP Checklist, Photographs
  • Areas Surveyed:
    Interior, Exterior, Above Ceiling

Error: Contact form not found.