HQ: Chattanooga, TN
Technicians Across the U.S.
+1 423 296 9000
Request a call back
Office Hours
M-F: 9:00-6:00 EST

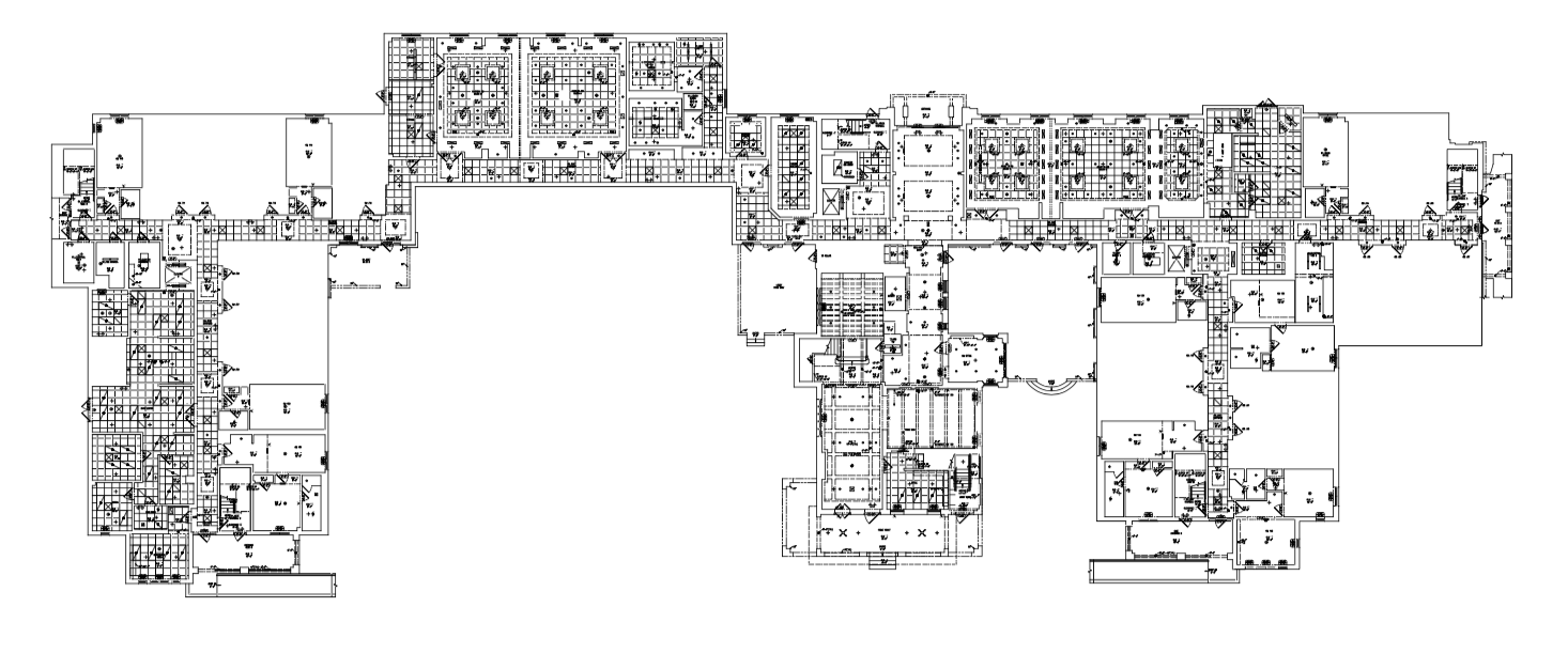
Hospitality Asbuilt Plans: Guest Inn Example

As-builts provide important information that is needed during construction and later for future projects. They serve as a foundation for planned and unplanned changes during the project so that the contractor’s staff can quickly obtain information about any design revisions.

Scope Snapshot
  • Floor Plans detailing visible structural elements
  • Reflected Ceiling Plans
  • Electrical, plumbing and fire protection systems
  • Interior Elevations of each unique guest room
Technical data
  • Survey Method
    Laser Measure to CAD while on site
  • Deliverables
    AutoCAD Drawings, Photo Documentation
  • Equipment
    Laser Disto Meter

Error: Contact form not found.